20 Willodene Road Macclesfield, SA 5153

4
2
2
$750 per week

Four bedroomed home with spectacular views


Welcome to 20 Willodene Road, Macclesfield – a spacious and inviting timber family home available for lease from the 24th of April 2026.

Features of this beautiful property:
* Separate Air-conditioning/Heating systems in each bedroom and living area plus fireplace in living room.
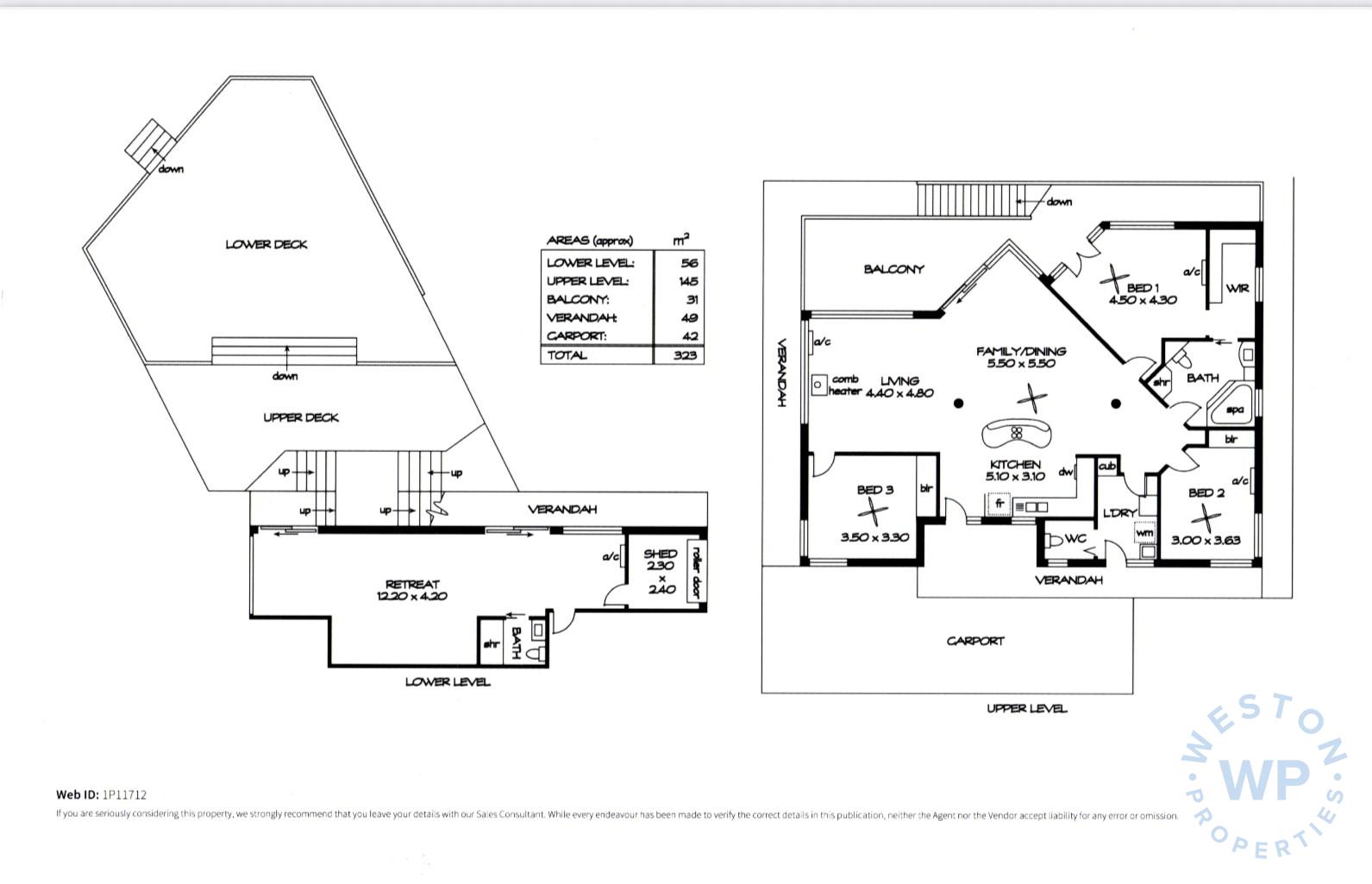
* Upstairs: 3 bedrooms and 1 full bathroom (newly renovated) as well as a separate toilet room.
* Main bedroom has a walk in robe and split system air conditioner. The other two bedrooms have built in closets.
* Bright, Farm style kitchen with dish washer. 3 remote controlled skylights overhead.
* Open plan dining room and living room with a slow combustion and split system air conditioner.
* Laundry room with separate toilet.
* Separate Downstairs area (with split system) open plan for a fourth bedroom and/or office plus 1 full bathroom.
* Huge deck perfect for entertaining with beautiful panoramic views that overlook the dam and surrounding areas.
* Separate, fully enclosed section of the large shed at the top of the property will be provided for the tenants to use. Plenty of room for 2 large vehicles and extra storage. Lockable.
* Rainwater only – approx. 44,000 litres total capacity in home tanks.
* Solar Panels are not included in the tenancy.

Outside, you will find a double carport and an open gravel area for more parking space. This property is ideal for families needing a peaceful environment and space.

There is a option to lease an additional 8-10 acres of land for a horse agistment, the tenant would need to erect their own fencing within the paddock and provide shelter as well as water – this would be an additional $100.00 per week.

Available for lease at $750 per week, this property is ready for you to call home.
* The area around the dam below the house is not for use of the tenants.

Available
Available from Friday, 24 April

Jade Oliver

Senior Property Manager

0437 813 916

Find Out The Value Of Your Property In Macclesfield